
Réalisations
![]() |
|---|
MAISON INDIVIDUELLE
- Permis de Construire -
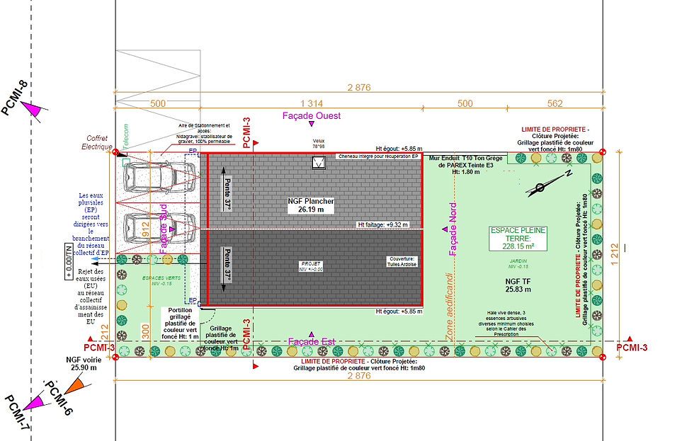
La maison est avec un étage et en construction traditionnelle. Les espaces seront plantés et engazonnés selon le cahier des prescriptions urbaines et paysagères.
L’implantation de la maison se situe au centre Sud de la parcelle, sur la limite séparative Est. La maison s'organise autour d’un plan rectangulaire et avec un étage. La maison est recouverte par un toit double pente 37° sans débord, avec le faitage perpendiculaire à la rue. L’implantation de la maison permet d'ouvrir les pièces de vie de la maison au Nord, et au Sud. L'entrée, au bout d’un dégagement, permet l'accès à un séjour ouvert sur la cuisine traversante, cela favorise l'éclairement naturel.
Une suite parentale, un cabinet de toilette, un placard et l’accès au garage se situent au rez-de-chaussée. L’étage de la maison singularise trois chambres dont deux ouvrants sur la rue. Une troisième chambre et la salle d’eau possèdent une fenêtre de toit chacune, de dimensions 114 cm par 118 cm et 78 cm par 98 cm. Le garage à même la maison, permet le stationnement d’une voiture.






